CQD16M CQD20M
Sinolift CQD16M CQD20M stand on electric reach Stacker
The CQD16M-20M reach trucks are engineered for lifting pallets weighing 1600kg to 2000kg in confined racking and warehouse spaces. Featuring the smallest turning radius in its class, these trucks excel in narrow aisles, maximizing storage efficiency. The moving masts extend seamlessly into racking for optimal reach, while lithium-ion opportunity charging ensures extended operational hours. Designed with a seated driver position, they enhance comfort and productivity for longer shifts. Ideal for tight warehouse environments, these trucks combine precision, power, and efficiency for superior material handling.
Features
- Chinese Top brand lead acid battery, standard sideshift, camera is optional application into cold room is optional.
- Removable side cover, easy for inspection and repair
- Optional LED lights make more efficient even in poor lighting conditions.
- Wide view mast, make a broader perspective
- Strong mast ensure safety and efficiency handling
- Suspension adjustable seat optional, make driver more comfortable, reduce fatigue during long operation.
Parameters
| Model | Electric Reach Stacker | Electric Reach Stacker | ||
| CQD16 | CQD20 | |||
| Power Type | Electric | |||
| Type of Operation | Stand-on | |||
| Steering Mode | Electric Power Steering | |||
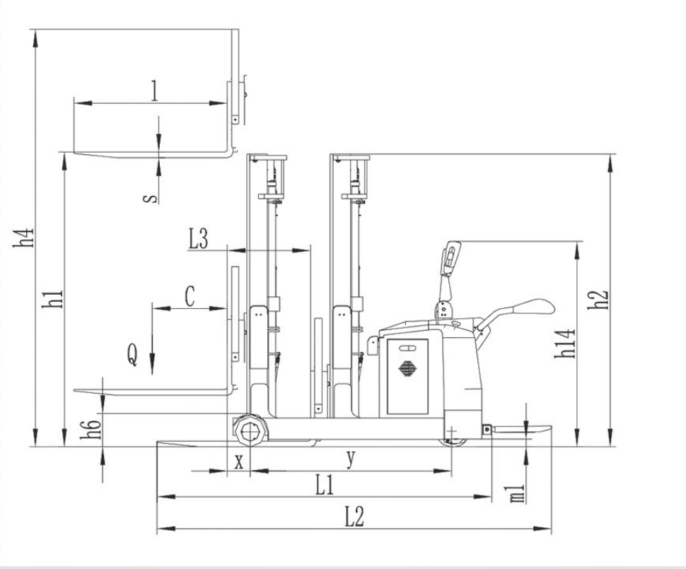
| Load Capacity/Rated Load | Q | kg | 1600 | 2000 |
| Load Center Distance | C | mm | 600 | 600 |
| Load distance, the center of drive axle to fork | x | 160 | 160 | |
| Wheelbase | y | mm | 1440 | 1610 |
| Total Weight (with Battery) | kg | 1980 | 2000 | |
| Axle Load (laden):Drive side/Load-bearing side | / | 1 | ||
| Axle Load (unladen):Drive side/Load-bearing side | kg | / | / | |
| Overall Length (Pedal Retracted/Expanded) | L1/L2 | 2335/2750 | 2435/2870 | |
| Overall Width | W1/W2 | mm | 880/1030 | 880/1030 |
| Lift Height | h1 | mm | 3000 | 3000 |
| Height with Mast Lowered | h2 | 2040 | 2040 | |
| Height with Mast Extended | h4 | mm | 3855 | 3855 |
| Free Lift Height | h5 | / | / | |
| Fork Dimension | l/e/s | mm | 1070×100×40 | 1070×122×40 |
| Fork Mounting Class | 2A | 2A | ||
| Fork Carriage Spread Width | b2 | mm | 220-690 | 220-690 |
| Fork Carriage Tilt forward/backward | α/β | ° | 2/4 | 2/4 |
| Inner Width of Straddle Leg | b3 | 748 | 748 | |
| Reach Distance | L3 | mm | 580 | 680 |
| Height of Straddle Leg | h6 | mm | 235 | 235 |
| Ground Clearance at the Center of Wheelbase (Min.) | m1 | 55 | 55 | |
| Height of Operating Handlebar (Min./Max) | h14 | mm | 1000/1450 | 1000/1450 |
| Turning Radius (Pedal Retracted/Expanded) | Wa | 1710/2145 | 1910/2340 | |
| Min.Aisle Width (Pallet size 1000*1200)(PedalRetracted/Expanded) | Ast | mm | 2835/3270 | 2955/3485 |
| Min.Aisle Width (Pallet size 800*1200)(Pedal Retracted/Expanded) | Ast | mm | 2785/3220 | 2900/3330 |
| Tyre Type | Polyurethane | Polyurethane | ||
| Tyre Size (Front) | φ210×85 | φ210×85 | ||
| Tyre Size (Balance Wheel) | mm | φ115×55 | φ115×55 | |
| Tyre Size (Driving Wheel) | mm | φ230×75 | φ230×75 | |
| Wheels Quantity, Front/Rear (x=Driving Wheels) | 2/1x+2 | 2/1x+2 | ||
| Traveling Speed (Laden/Unladen) | Km/h | 5/5.5 | 4/5 | |
| Lifting Speed(Laden/Unladen) | mm/s | 80/130 | 80/130 | |
| Lowering Speed (Laden/Unladen) | mm/s | 150/100 | 150/100 | |
| Max. Gradient Performance S2 5min (Laden/Unladen) | % | 5/8 | 4/8 | |
| Service Brake Type | Electromagnetic | Electromagnetic | ||
| Parking Brake Type | Electromagnetic | Electromagnetic | ||
| Drive Motor Rating (AC) S2-60min | 1.5 | 1.5 | ||
| Lift Motor Rating (DC) S3 15% | kW | 3 | 3 | |
| Battery Voltage/Capacity K5 | V/Ah | 24/240 | 24/240 | |
| Battery Weight | kg | 200 | 200 | |
| Controller Brand | CURTIS | CURTIS | ||
| Controller Model | 1232E | 1232E | ||
| Sound Level at Driver’s Ear According to EN12053 | dB | 70 | 70 | |
Product Details
Built-in large-capacity battery
Compatible pallets: Single-sided pallet display Nine-foot four-way pallet Cross-shaped four-way pallet Double-sided pallet display Square four-way pallet Double-sided pallet
Product Details: Energy gauge Key switch Emergency switch Reinforced chains Ergonomic handle Foldable protective arm
Operation Instructions: Control the lifting and lowering of the mast, forward and backward movement of the mast, and mast tilting (forward and backward) to facilitate the loading and unloading of goods.
FAQ
-
What is a stand-on electric reach stacker?
A stand-on electric reach stacker is a type of material handling equipment designed for lifting and moving heavy loads in tight spaces. Unlike traditional sit-down forklifts, it allows the operator to stand while driving, providing better maneuverability in narrow aisles and higher reach capabilities for stacking goods at various heights. -
What is the maximum load capacity of a stand-on electric reach stacker?
The load capacity of stand-on electric reach stackers typically ranges from 1,000 kg to 2,500 kg, depending on the model. It's important to select a reach stacker that suits the specific weight requirements of your operation. -
How high can a stand-on electric reach stacker lift?
Stand-on electric reach stackers can typically lift loads to heights between 3 meters to 6 meters (approximately 10 to 20 feet). Some models are even capable of reaching up to 8 meters (26 feet), depending on the configuration. -
Are stand-on electric reach stackers suitable for outdoor use?
Stand-on electric reach stackers are generally designed for indoor use, especially in warehouses with narrow aisles and high racks. For outdoor operations, you'll need to consider more robust equipment like electric or diesel-powered forklifts that can handle rougher terrain. -
What are the benefits of using a stand-on electric reach stacker?
The stand-on design allows for increased maneuverability in tight spaces, reducing the risk of accidents and increasing efficiency. These stackers are energy-efficient, produce no emissions, and require less maintenance compared to traditional forklifts. Additionally, their compact design enables them to maximize warehouse storage space while offering high lifting capabilities.
Optional Extras

Li-on Battery (Lithium Phosphate Battery)
Opt for the Lithium Phosphate Battery (LiFePO₄) to power your electric pallet truck. This advanced battery technology delivers high safety, long cycle life, and stable performance, making it ideal for demanding operations. With fast charging, minimal maintenance, and eco-friendly benefits, it’s a perfect upgrade for multi-shift applications in modern warehouses and logistics.

Blue spot light
The blue spot light projects a visible beam on the ground, indicating the forklift’s direction of travel. This enhances safety by alerting nearby workers to the forklift’s movements, especially in busy environments.

Alarm Lamp
With an alarm lamp integrated into the design, this device offers a highly visible warning solution for forklifts and industrial vehicles. The bright, flashing light enhances safety by alerting personnel to the presence of the vehicle, especially in busy or low-visibility environments. Available in various colors, including amber, red, and blue, the alarm lamp can be customized to meet different safety requirements and regulations. Durable and weather-resistant, it ensures reliable performance in diverse working conditions, helping to prevent accidents and improve overall workplace safety.

Forklift Wireless Cameras
Forklift wireless cameras enhance safety and efficiency by providing real-time visual feedback to operators. These cameras offer a clear view of blind spots, load positioning, and surrounding areas, reducing the risk of accidents and improving load handling accuracy. Easy to install and compatible with most forklifts, they are ideal for busy warehouses, tight spaces, and high-traffic environments. With durable designs and wireless connectivity, they ensure reliable performance and seamless integration into your operations.

Reverse Alarm
The reverse alarm adds an important safety feature by emitting a loud sound when the stacker is moving in reverse. This alerts nearby personnel of the stacker’s movement, reducing the risk of collisions or accidents. The reverse alarm is especially useful in crowded environments, helping to keep both operators and others in the workspace aware of the stacker’s actions.

Mirror
Equipped with a mirror, this option improves rear visibility for the operator, enhancing safety when maneuvering in tight or crowded spaces.

Password lock
The password lock feature adds an extra layer of security by restricting access to authorized personnel only, preventing unauthorized use of the truck.

Cold store protection
Designed for extreme cold storage environments, this electric pallet truck is equipped with specialized features such as cold store oil, anti-slip platforms, and heated batteries. Built to operate seamlessly in low-temperature conditions, it ensures reliable performance and durability in harsh environments. With enhanced insulation and robust components, this version guarantees efficiency and safety in demanding cold storage applications.

Corrosion Conditioning
Designed with corrosion-resistant materials and coatings, this option is ideal for use in humid, salty, or chemically aggressive environments, ensuring long-term durability and reliable performance.

Headlights
The headlights provide clear illumination for safe and efficient operation in low-light or dark warehouse areas. This feature enhances visibility, reducing the risk of accidents and improving safety during night shifts or in poorly lit environments.

Overhead Guard
The overhead guard protects the operator from falling objects or debris, enhancing safety in environments where items could be dropped from above. This feature is crucial for preventing injuries during high-lift operations or in areas with overhead hazards, ensuring operator safety at all times.
Related products
-
Counter-balanced Eletric Forklift
CPD40M CPD45M CPD50M
-
Counter-balanced Eletric Forklift
CPD20M CPD25M
-
Electric Stacker
DYC-G
-
Electric Pallet Truck
CBD20E

















